| NIVEAU | PIÈCE | SURFACE |
- Ref 340694053
- Ref 4053
- Type Appartement
- Ville MONTPELLIER
- Pièces 3
- Chambres 2
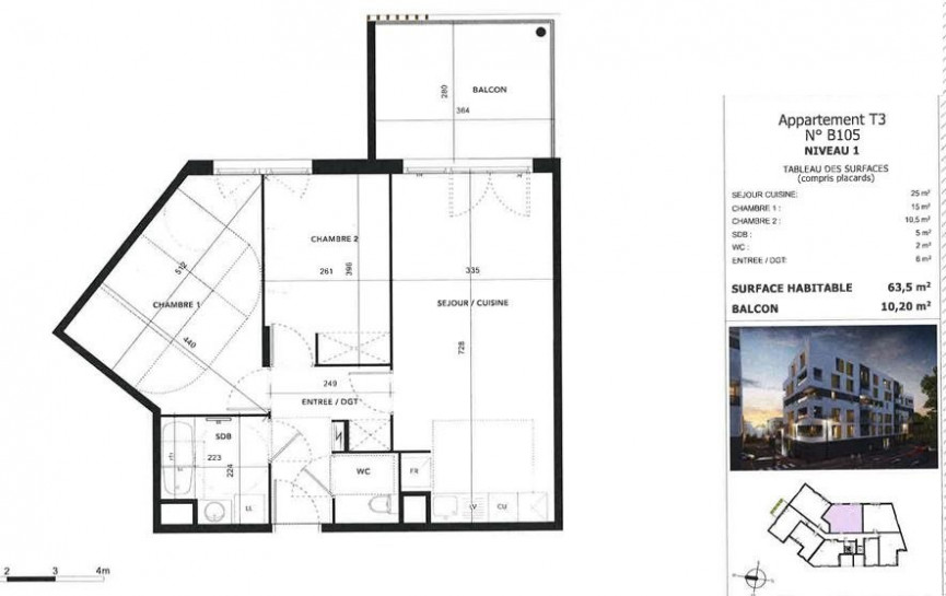
- Surface 63 m²
- Terrain 68 m²
- Prix :
297 686 € *
Montpellier, parfaitement situé proche du Cours Gambetta, confortable T3 de 65 m² dispose d'une terrasse de 13 m². A l'intérieur, un beau séjour de 23 m², 2 chambres dont une très grande, une salle de bains et un wc indépendant. 1 stationnement en sous sol est compris dans le lot.
Prix affiché en TVA 5.5 accessible sous conditions.
Les informations sur les risques auxquels ce bien est exposé sont disponibles sur le site Géorisques
Notre barème d'honoraires
* Honoraires charge vendeur.
Voir le descriptif des pièces
Contactez
Notre agence
Autour de ce bien :
Découvrez les écoles, hopitaux, commerces ... à proximité
- Bien
- 43.5968596
- 3.8502617
- /images/ggmap-marker.png
- click
-
AppartementMONTPELLIER - 63 m²




















