| NIVEAU | PIÈCE | SURFACE |
- Ref 340694145
- Ref 202506457
- Type Bureau
- Ville PRADES LE LEZ
- Pièces 12
- Chambres NC
- Surface 202 m²
- Terrain NC
- Prix :
333 300 €
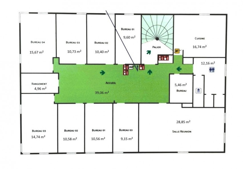
Prades le lez, dans un immeuble de bureaux local lumineux de 202 m² avec une petite terrasse extérieure. Un grand accueil open space, une salle de réunion, 9 bureaux , une salle de rangement, un espace cuisine détente et un espace sanitaire avec 2 WC et une douche. Chauffage et climatisation par un système gainable. 12 places de parking privatives. Disponibilité mi novembre 2025.
Les informations sur les risques auxquels ce bien est exposé sont disponibles sur le site Géorisques
Notre barème d'honoraires
Voir le descriptif des pièces
Contactez
Notre agence
Autour de ce bien :
Découvrez les écoles, hopitaux, commerces ... à proximité
- Bien
- 43.6975515
- 3.8630093
- /images/ggmap-marker.png
- click
-
BureauPRADES LE LEZ - 202 m²




















