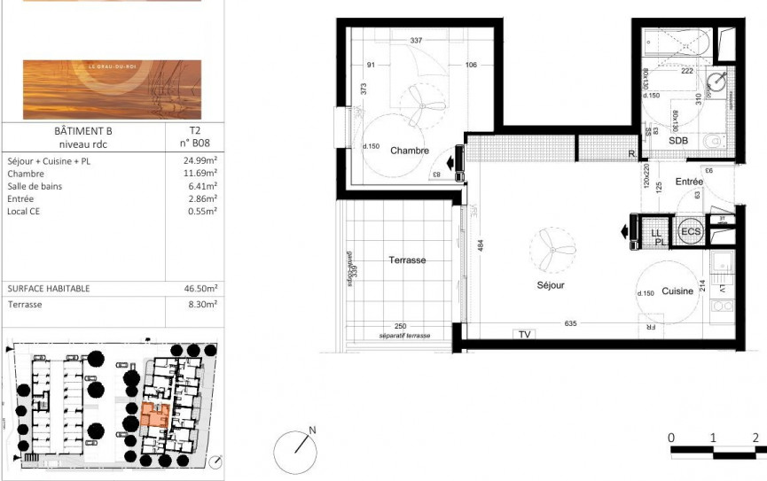
| NIVEAU | PIÈCE | SURFACE |
- Ref 340694156
- Ref 4156
- Type Appartement
- Ville LE GRAU DU ROI
- Pièces 2
- Chambres 1
- Surface 46 m²
- Terrain NC
- Prix :
255 000 € *
Le Grau du Roi, nouvelle résidence à taille humaine de 2 étages, propose ce joli T2 qui dispose d'un confortable salon ouvert sur une terrasse et un jardin, idéal pour son animal de compagnie, 2 belle chambre ouverte sur l'extérieur. Prestations soignées avec clim et carrelage 60x60 wc suspendu, 2 stationnements privatifs.
Les informations sur les risques auxquels ce bien est exposé sont disponibles sur le site Géorisques
Notre barème d'honoraires
Bien soumis au statut juridique de la copropriété. Nb de lot :38.
* Honoraires charge vendeur.
Voir le descriptif des pièces
Contactez
Notre agence
Autour de ce bien :
Découvrez les écoles, hopitaux, commerces ... à proximité
- Bien
- 43.513984
- 4.1616143
- /images/ggmap-marker.png
- click
-
AppartementLE GRAU DU ROI - 46 m²








